ENGLISH
ホーム
Suomi Koti について
製 品
スタイル&デサイン
技術情報
なせ木造建築?
お問合せ
Suomi-Koti プラン
<< ECO P4
ECO P6 >>
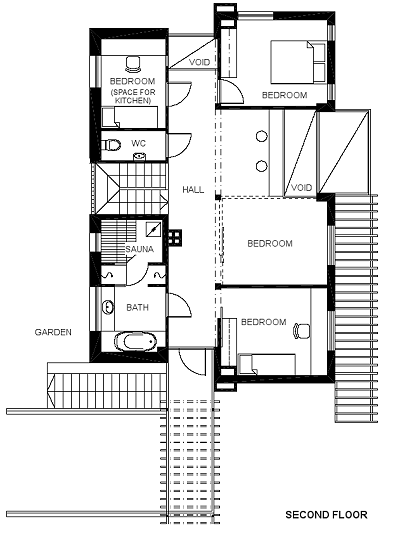
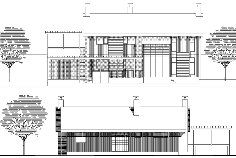
Eco P5 - Siiri
© KIMMO KUISMANEN ARCHITECTS
© 2014 :: Suomi-Koti ::
All rights Reserved